פינסקר 4, תמ"א הריסה ובניה, הרצליה
מיקום: רחוב פינסקר, הרצליה
גודל: 2,100 מ"ר
יזם: קידר מבנים
תיאור הפרויקט: בנין חדש במסגרת תמ"א הריסה ובניה במגרש צר וארוך. הבניין בן 7.5 קומות מעל קומת קרקע. סה"כ 20 יחידות דיור הכוללות דירת גן ופנטהאוז.
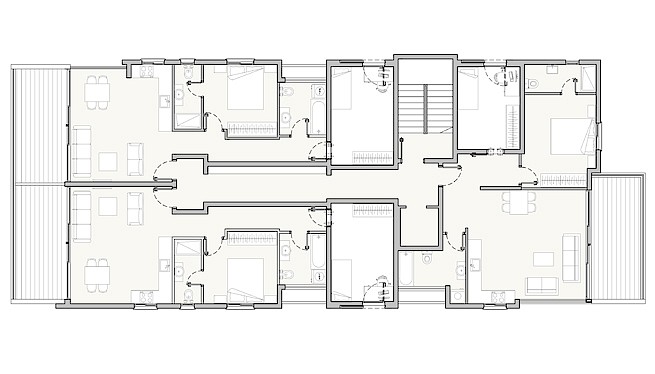
פינסקר 4, תמ"א הריסה ובניה, הרצליה
מיקום: רחוב פינסקר, הרצליה
גודל: 2,100 מ"ר
יזם: קידר מבנים
תיאור הפרויקט: בנין חדש במסגרת תמ"א הריסה ובניה במגרש צר וארוך. הבניין בן 7.5 קומות מעל קומת קרקע. סה"כ 20 יחידות דיור הכוללות דירת גן ופנטהאוז.
