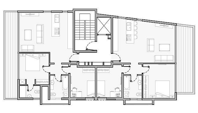
השרון 6, תמ"א הריסה ובניה הרצליה
מיקום: רחוב השרון, הרצליה
גודל: 2,000 מ"ר
יזם: קידר מבנים
תיאור הפרויקט: בנין חדש במסגרת תמ"א הריסה ובניה במגרש צר ומאתגר של חצי דונם. בניין בן 7.5 קומות מעל קומת קרקע. סה"כ 15 יחידות דיור הכוללות דירת גן, דירת דופלקס ופנטהאוז.
