בית בהרצליה ב': 1.7
מיקום: רחוב המסילה, הרצליה
גודל: 280 מ"ר
יזם: פרטי
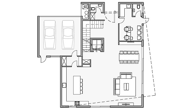
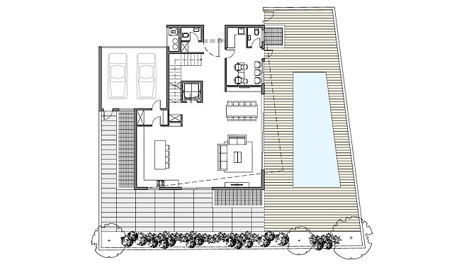
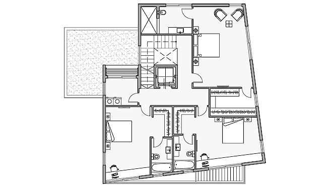
תיאור הפרויקט: הבית השלישי מתוך מתחם של שבעה בתים שמשרדנו מתכנן. הקומה הראשונה הוסטה כמו קוביה לעומת קומת הקרקע במקביל לקו מגרש אלכסוני, זאת כדי לרווח את גודל הגינה בקומת הקרקע ולעומת זאת למקסם את גודל התוכנית בקומה הראשונה. הסטה זו יוצרת גגון לסלון ומרפסת לחדר שינה. החזיתות ממשיכות את השפה המינימליסטית של המתחם.
