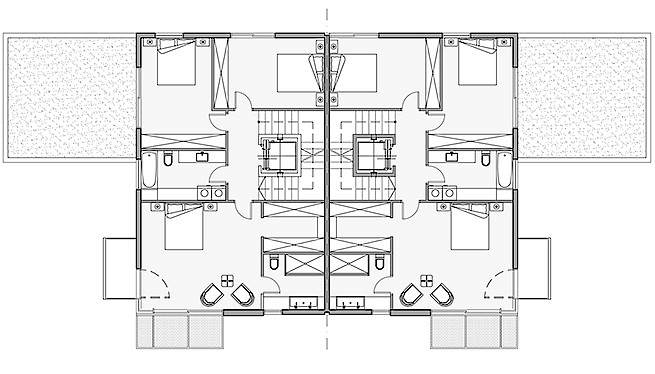
בית בהרצליה ב': 1.5+1.6
מיקום: רחוב המסילה, הרצליה
גודל: 280 מ"ר
יזם: פרטי
תיאור הפרויקט: הבית הרביעי וחמישי מתוך מתחם של שבעה בתים שמשרדנו מתכנן. לשני הבתים קיר משותף. החזיתות מינימליסטיות עם נגיעות של חיפוי עץ.
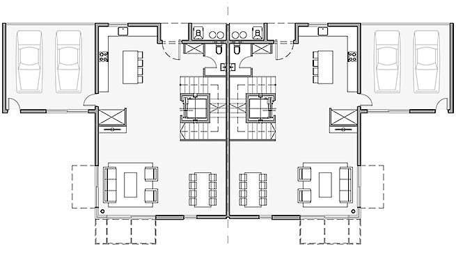
בית בהרצליה ב': 1.5+1.6
מיקום: רחוב המסילה, הרצליה
גודל: 280 מ"ר
יזם: פרטי
תיאור הפרויקט: הבית הרביעי וחמישי מתוך מתחם של שבעה בתים שמשרדנו מתכנן. לשני הבתים קיר משותף. החזיתות מינימליסטיות עם נגיעות של חיפוי עץ.