ההגנה - העליה השניה
מיקום: פינת הרחובות ההגנה והעליה השניה, הרצליה
גודל: 6300 מ"ר
יזם: פרטי
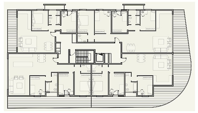
תיאור הפרויקט: תב"ע נקודתית בסמכות מקומית להוספת שטחי בניה עיקריים. התוכנית כוללת מסחר בקומת הקרקע וקומות מגורים מעל בתמהיל מעורב של דירות 3-4 חדרים. פינת הרחובות מודגשת ע"י מרפסות ואלמנט הצללה המשכיים לכל אורך החזיתות של ההגנה והעליה השניה. התוכנית קיבלה מתן תוקף באוגוסט 2018.
